Araz Supermarket Store Design & Planning
We develop supermarket brand strategies and environments.
Innovative. Creative. Effective .
Developing a supermarket retail concept in Baku, Azerbaijan, with interior store design, brand strategy, marketing communications, and graphics.
CampbellRigg was commissioned by Araz Supermarkets, a leading grocery retail chain in Azerbaijan, to deliver an integrated retail design, visual identity and branding solution that enhances the in‑store experience, strengthens brand perception and supports sustainable commercial growth across multiple store formats.

We collaborated with Araz management to reinvent the "Local Mall" for a digital age; a "Physical place where many multiple consumer offerings
are available."Our solution is a modern evolution of architectural
design and building materials.

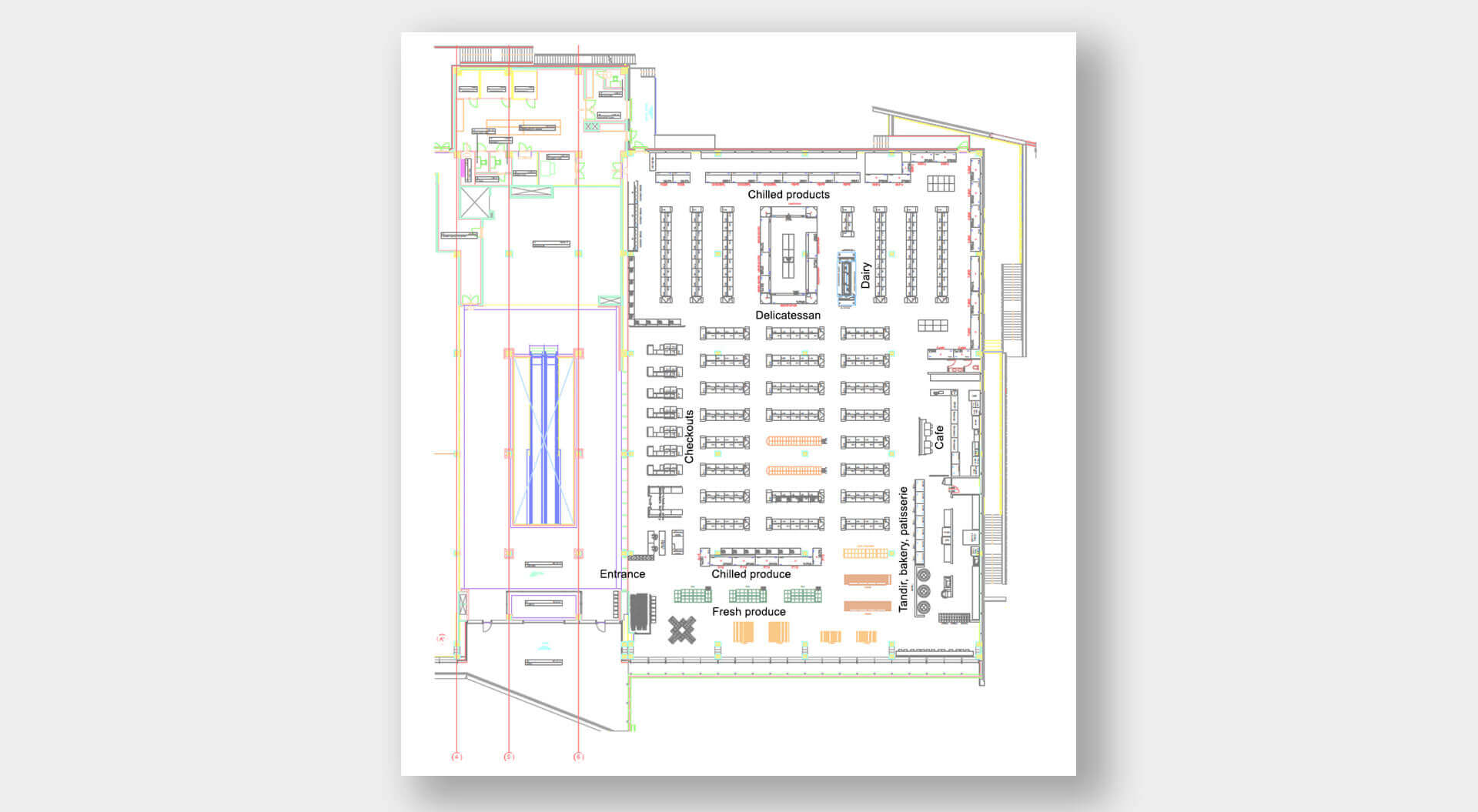
Azerbaijan’s leading supermarket chain Araz, headed by Aydin Talibov, tasked CampbellRigg with the architectural design and creation of a new shopping mall to house, as anchor tenant, their supermarket brand in the centre of Baku. The 12000m2 multi-storey shopping mall situated over three floors houses a 2080m2 Araz supermarket.

"Campbell Rigg reinvents local retail at the Araz Mall."
arazmarket.az Baku, Azerbaijan

The strip mall design allows a large amount of natural light through glazed elevation and is a key driver for CampbellRigg's design approach. Allowing for a flexible structural design, whilst designing for efficient energy usage and maintaining comfortable interior conditions for users, was a key goal for the client.

The goal was to transform the perception of the local strip mall and supermarket in Azerbaijan. Our creative team integrated Araz Supermarket into the mall design, positioning it as the anchor tenant. Complementary brands, including LC Waikiki for fast fashion, Pepco for affordable apparel, household goods and toys, and Rossmann pharmacy, were strategically incorporated to create a destination where visitors could comfortably spend half a day shopping.
"Demonstrates eye-opening possibilities in architecture and retail design in Azerbaijan."



For the supermarket, our planning principles were to:
1. Create a more intuitive easy to shop customer journey
2. Place destination ‘hero’ brands in anchor locations
3. Develop a warm and welcoming first impression and engage customers in sustainability and recycling 4. Considerate approach to disabled and parents and child parking within the exterior environment.
"Araz Mall and Supermarket illuminates and points the way forward for food retailing in Baku."
Our Four-Step Process:
1. Book a consultation call for free
2. Co-create a bespoke brief
3. We execute the creative work fast
4. You see sales, brand loyalty and market share uplift

Ready to Transform Your Supermarket Performance?
Schedule a free consultation with CampbellRigg’s retail branding and design experts to make every square metre work harder.
Cost-Effective Excellence:
Our pricing structure is highly competitive, offering exceptional value without compromising on quality or creativity.
Rapid Execution:
We move fast. From concept to implementation, our agile team ensures your project is delivered on time and to the highest standards.
Multidisciplinary Expertise:
Our team brings together seasoned brand strategists, architects, interior designers, and graphic designers, collaborating to create seamless, end-to-end brand environments.
Global Reach, Local Insight:
With successful projects delivered across Europe, the Middle East, and Asia, we combine international experience with local market understanding.
Scalable Project Delivery:
Whether it's a flagship strip mall with supermarket store anchor, an metropolitan city supermarket or convenience store, we manage and execute projects of all sizes, efficiently and effectively.
Proven Track Record:
Our designs evolve branch networks from purely transactional spaces into experiential, relationship-focused brand environments, enhancing engagement, elevating customer experience, and driving tangible business results.
Full-Service Creative Agency:
From rebranding and marketing campaigns to spatial design and rollout, we provide an integrated service tailored to your goals.



